Vous utilisez un navigateur Internet obsolète. Nous vous recommandons d'installer le dernier navigateur Internet pour un affichage optimal de ce site Web. Un navigateur Internet à jour garantit également une navigation sécurisée.

Malheureusement, cette propriété estvendu

8670 Koksijde

Description

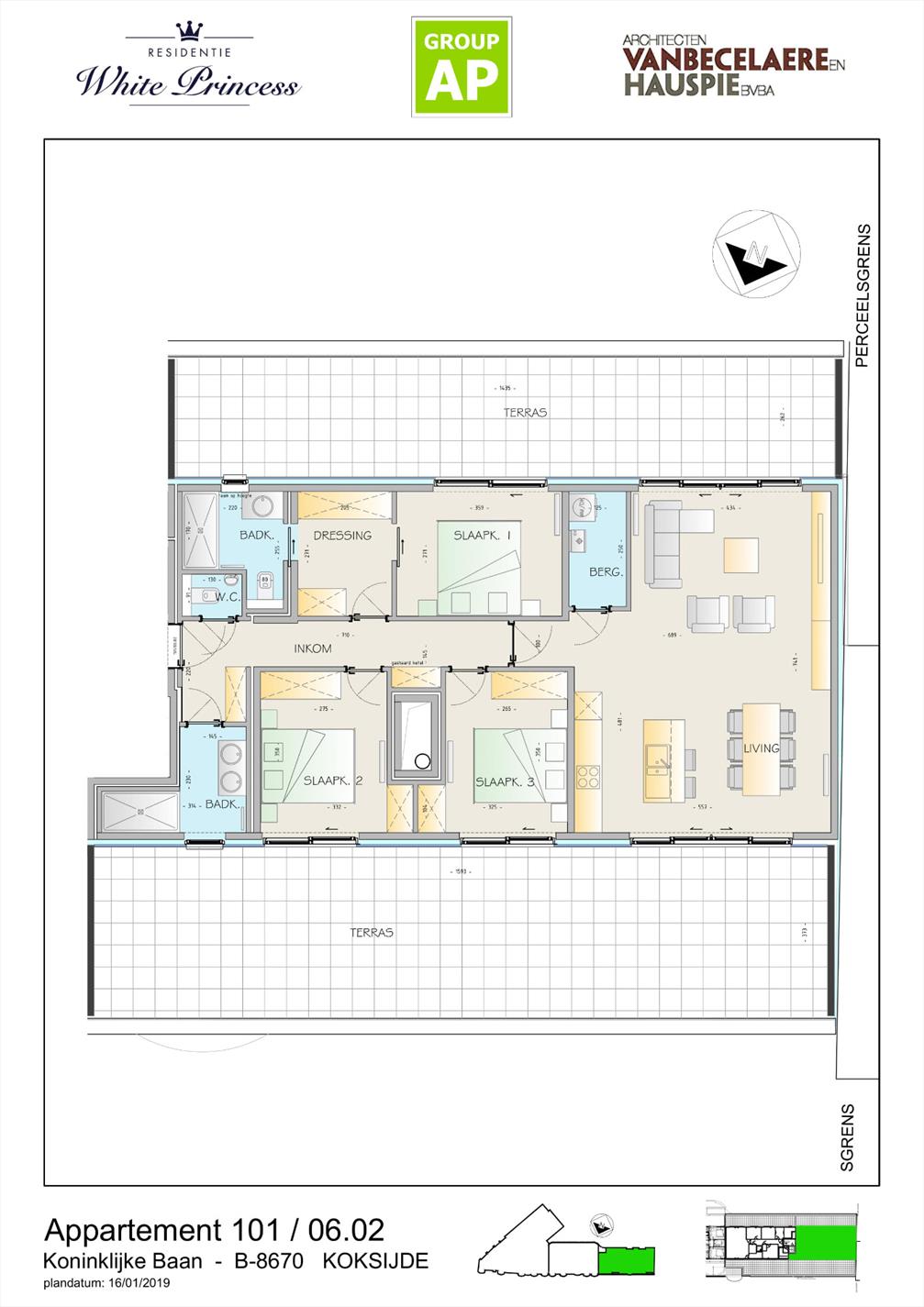
Penthouse de luxe avec 3 chambres avec vue sur mer !

Penthouse en nouvelle construction de 121.08 m2 et superficie de terrasse totale de 96.90 m2 à vendre sur plan.
Cet appartement se compose d'un living très spacieux avec cuisine ouverte et moderne, 3 chambres à coucher, 2 salles de bains avec douche, débarras spacieux, un dressing et toilette séparée. Du living et les chambres il y a accès vers les 2 terrasses; 1 orientée Sud avec jacuzzi et 1 orientée Nord. De cette manière vous pouvez profiter du soleil du matin au soir. Sous-sol il y a un grand débarras inclus dans le prix. Venez visiter nos appartements témoins! Vente sous la loi Breyne, début travaux prévu pour Pâques 2018, livraison prévu pour Pâques 2020. Un Paquet cadeau très attrayant et intéressant est offert par le promoteur aux acheteurs des premiers 10 appartements !!


Vous n'avez pas trouvé ce que vous cherchez? N’hésitez pas à s'abonner à notre newsletter et restez informé de nos dernières offres.
Inscrivez-vous
Retour en haut
Fermer le menu Ultimmo